HONGO BASE 1

【HONGO BASE】
愛車と暮らす都心の秘密基地

「愛車と暮らす、隠れ家で照らす。」

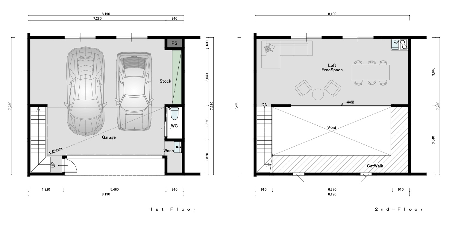
HONGO BASE 1 HONGO BASE 間取り図 HONGO BASE 2 HONGO BASE 3 HONGO BASE 4 HONGO BASE 5

名古屋市名東区の東名名古屋IC近くに新登場ガレージハウス。
10月10日(金)、11日(土) 完成見学会を開催いたします。

当日はフェラーリ-ピスタ ランボルギーニ-ウラカンエボ ポルシェGT3RS シェルビーコブラ などを展示予定なのでガレージライフを体感ください。

物件概要

物件名

HONGO BASE

賃料

245,000円

共益費 / 敷金 / 礼金

3,000円 / 1ヶ月 / 1ヶ月

物件住所

名古屋市名東区社が丘3丁目1416

築年数(西暦)

2025年10月

現況

建築中

建物階数

2階建

部屋階数

1〜2階

間取内容

電動シャッター付きガレージ2台分 + 2階ロフトフリースペース

設備・条件

リモコン式電動シャッター、ALSOK警備システム、トイレ、ミニキッチン

ご興味のある方は、ぜひお問い合わせフォームよりご連絡ください。

関連ブログからも詳細をご確認いただけます。